


Aerial view of the property
The house, fully renovated in 2024, is located on a hill top facing south, and enjoys a beautiful view.
The house has two large terraces, one on the north side and one on the south side.
The terraces are paved with Sicilian tufo, and have pergolas for shades.
Around the house there are olive trees, wineyards, and woods.
Near the property entrance there is an EV recharging station.
The swimming pool is located just south of the house.
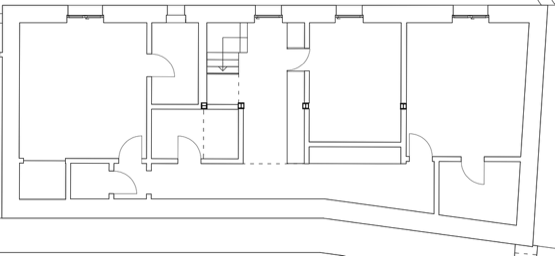
Top floor
The top floor is at level with the north terrace.
The kitchen and a large living area are on the west side.
The large master bedroom and private bathroom are on the east side.
The bedroom has a king size bed (180 x 200 cm).
Ground floor
The ground floor is facing the south terrace.
The two master bedrooms have private bathrooms. Upon request, the two single beds can be configured as a king-size bed.
The third bedroom has two single beds (90 x 200 cm), and a private bathroom across the hall.
A laundry room is also available to the guests.
North terrace
South terrace
Swimming pool

Kitchen
Master bedroom
Bathroom
powder room
Master bedroom
Bedroom
Master bedroom
Bathroom
Bathroom
Laundry room
Living area
Dining area
Entrance
Bathroom
North terrace


South terrace




Closet
Olive trees
Woods
Pergola
Pergola
EV rechargin station